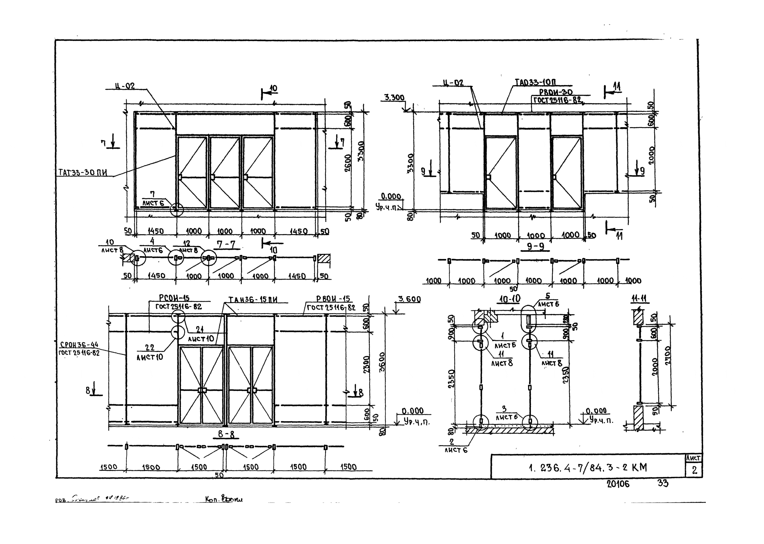
Вкратце про изделие
Противопожарные витражи по ГОСТ 33000-2014 – это прочные ограждающие конструкции с заданным пределом огнестойкости устанавливаются в многоэтажных сооружениях и зданиях. Часто пожарные подъёмники имеют ограничения по высоте, и чтобы спасателям успеть развернуть необходимое снаряжение и добраться до нужного этажа, требуется время.
Противопожарный витраж по ГОСТ 33000-2014 / серия FRM7324 устанавливается на верхних этажах, чтобы удержать распространение огня и обеспечить надёжную защиту имущества и людей, давая пожарным важные дополнительные минуты. Противопожарные витражи по ГОСТ 33000-2014 устанавливаются в сооружениях, которые расположены близко друг другу, обеспечивая пожаробезопасность одного объекта при возгорании в другом.
Противопожарный витраж по ГОСТ 33000-2014 / серия FRM7324 — разновидности огнестойкости
Противопожарные конструкции обладают разными классами огнестойкости и маркируются как:
- EI-15 – гарантируют сохранение теплоизолирующих характеристик и целостности системы в течении 15 минут.
- EI-30 – позволяют обеспечить безопасную эвакуацию в течении 30 мин.
- EI-45 – при пожаре конструкция сохраняет целостность 45 минут.
- EI-60 – изделие не позволит дальнейшему распространению пламени в течении 1 часа.
Компания FIREMAX проектирует и изготавливает противопожарные витражи любых размеров и форм. Мы готовы оперативно выполнить изделия с любым пределом огнестойкости, которые полностью соответствуют техническому регламенту пожарной безопасности.
Из чего состоит конструкция витража?!
Противопожарные витражи по ГОСТ 33000-2014 с заданным пределом огнестойкости изготавливаются из прочных противопожарных профилей, состоящих из камер, которые наполняются сертифицированным огнеупорным материалом. Для остекления применяются огнестойкие стеклопакеты.
Противопожарный витраж по ГОСТ 33000-2014 / серия FRM7324 может быть установлен как внутри, так и снаружи сооружения, например, при возведении пожарных переходов между зданиями или при оформлении лестничных пролётов. Главная задача данной модели — пассивная защита объектов, где наблюдается массовое скопление людей, это могут быть:
- административные и общественные здания;
- библиотеки, спортивные комплексы;
- бизнес центры;
- учреждения здравоохранения, образования;
- производственные цеха, промышленные предприятия;
- автовокзалы, аэропорты;
- бары, кафе, рестораны.
Противопожарный витраж по ГОСТ 33000-2014 / серия FRM7324 — ключевые преимущества
- имеют привлекательный внешний вид, эстетично вписываются в любое стилистическое решение;
- отличаются лёгкостью, поэтому удобны при транспортировке и выполнении монтажных работ;
- экономят пространство, отлично пропускают свет, обладают звуконепроницаемостью;
- простота и практичность в использовании — уход за конструкциями не требует наличия профессиональных навыков и специальных знаний;
- высокая прочность, которая соответствует действующим в РФ противопожарным требованиям.
Почему стоит заказать именно в нашей компании?
Специалисты компании FIREMAX проводят контроль качества изделий на каждом этапе производства, поэтому гарантируют полную ответственность за конечный результат. Доставка продукции осуществляется спецтранспортом по всей территории России или с помощью надёжных транспортных компаний. Наши сотрудники оперативно подготовят комплект разрешительной документации, предложат оптимальные варианты доставки и подробно разъяснят преимущества и особенности противопожарных систем.


















Отзывы
There are no reviews yet